Retour à la liste

JARDIN EXOTIQUE | LE PLATI | 2 PIECES

Jardin exotique / Le Plati

contacter l'agence Monaco Properties

Exclusivité

Vente

réf VMO-JD-2P-3_251126-0

Caractéristiques

Prix de vente2 750 000 €

Type de bienAppartement

Nb de pièces2

Chambre(s)1

Salle(s) de bain1

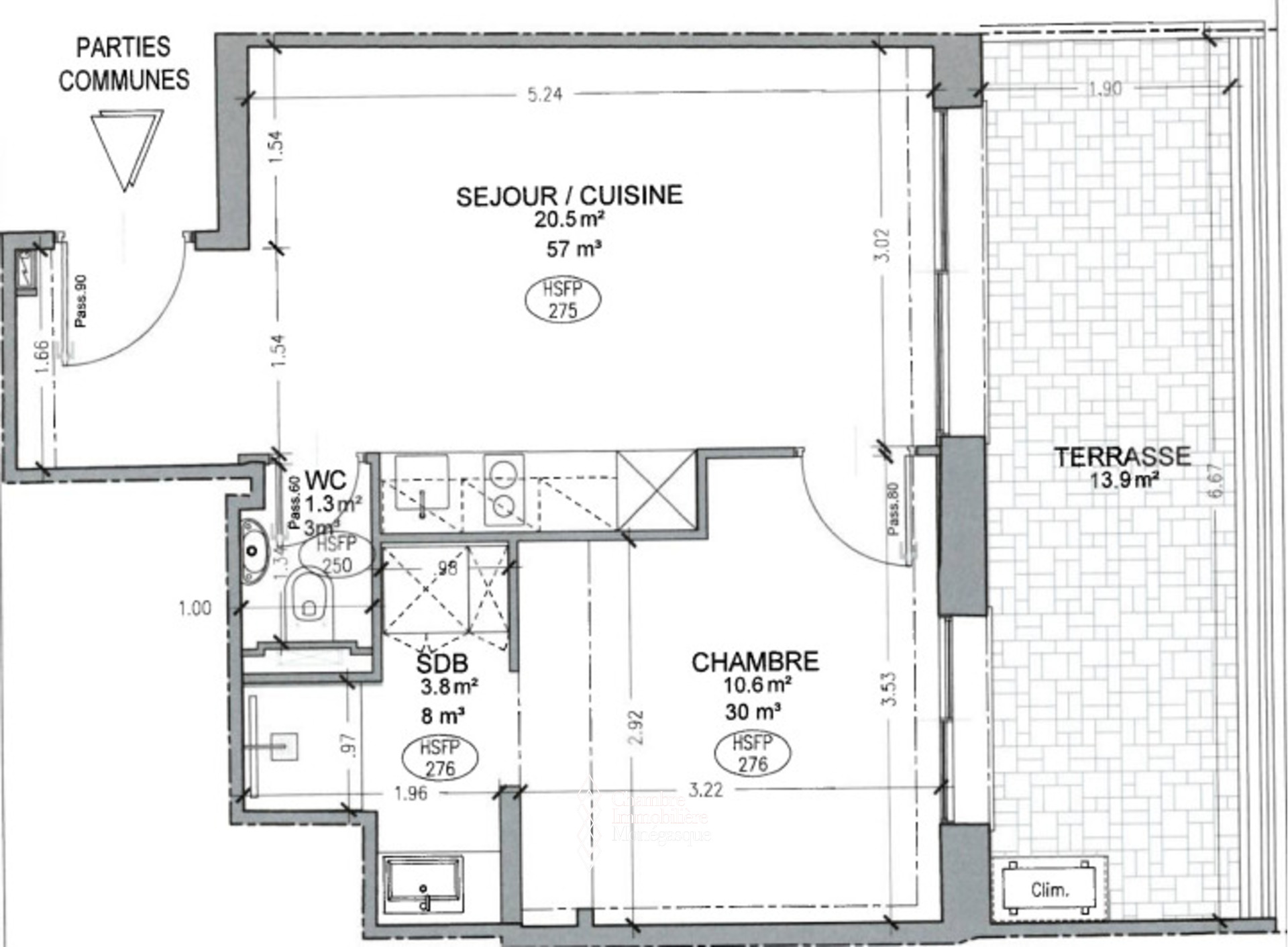
Superf. totale56 m²

Superf. terrasse14 m²

Télécharger en PDF

Description

Le Plati - Dans une résidence moderne située à proximité de toutes les commodités et du Parc Princesse Antoinette, bel appartement luxueusement rénové. L'appartement lumineux et clame offre une jolie échappée mer. Idéal pour un couple, l'appartement se compose comme suit :
- Hall d'entrée
- Salon avec cuisine américaine
- Toilette
- Chambre avec dressing et salle de bains en suite
- Terrasse
Possibilité de parking dans les deux parkings publics à proximité de la résidence.
Usage mixte bureau / habitation possible

Monaco Properties

T. +377 97 97 33 97 info@mpmonaco.com https://www.monacoproperties.mc Voir tous les biens

Galerie Photos

Ce document ne fait partie d'aucune offre ou contrat. Toutes mesures, surfaces et distances sont approximatives. Le descriptif et les plans ne sont donnés qu'à titre indicatif et leur exactitude n'est pas garantie. Les photographies ne montrent que certaines parties de la propriété. L'offre est valable sauf en cas de vente, retrait de vente, changement de prix ou d'autres conditions, sans préalable.